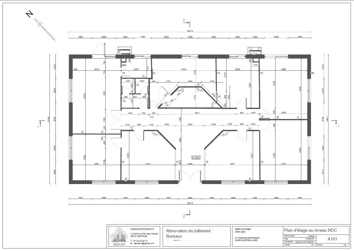
Relevé laser et modélisation 3D des bureaux

Nous sommes ravis d’avoir accompagné CRRI 2000 dans son projet de rénovation.

Dans ce cadre, nous avons réalisé un relevé laser 3D d’un bâtiment de bureaux, suivi de la modélisation BIM sous Revit et de l’export des plans au format DWG.

Pour garantir la fiabilité et la précision du modèle, une analyse des écarts a été effectuée entre le bâtiment existant scanné et la maquette numérique.

Un grand merci à CRRI 2000 pour sa confiance.

Précédent
Précédent

Scan laser et modélisation 3D Revit de la façade

Suivant
Suivant

Relevé laser et modélisation 3D pour un projet d’aménagement paysager et de rénovation